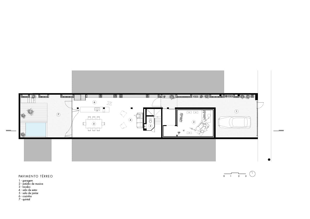
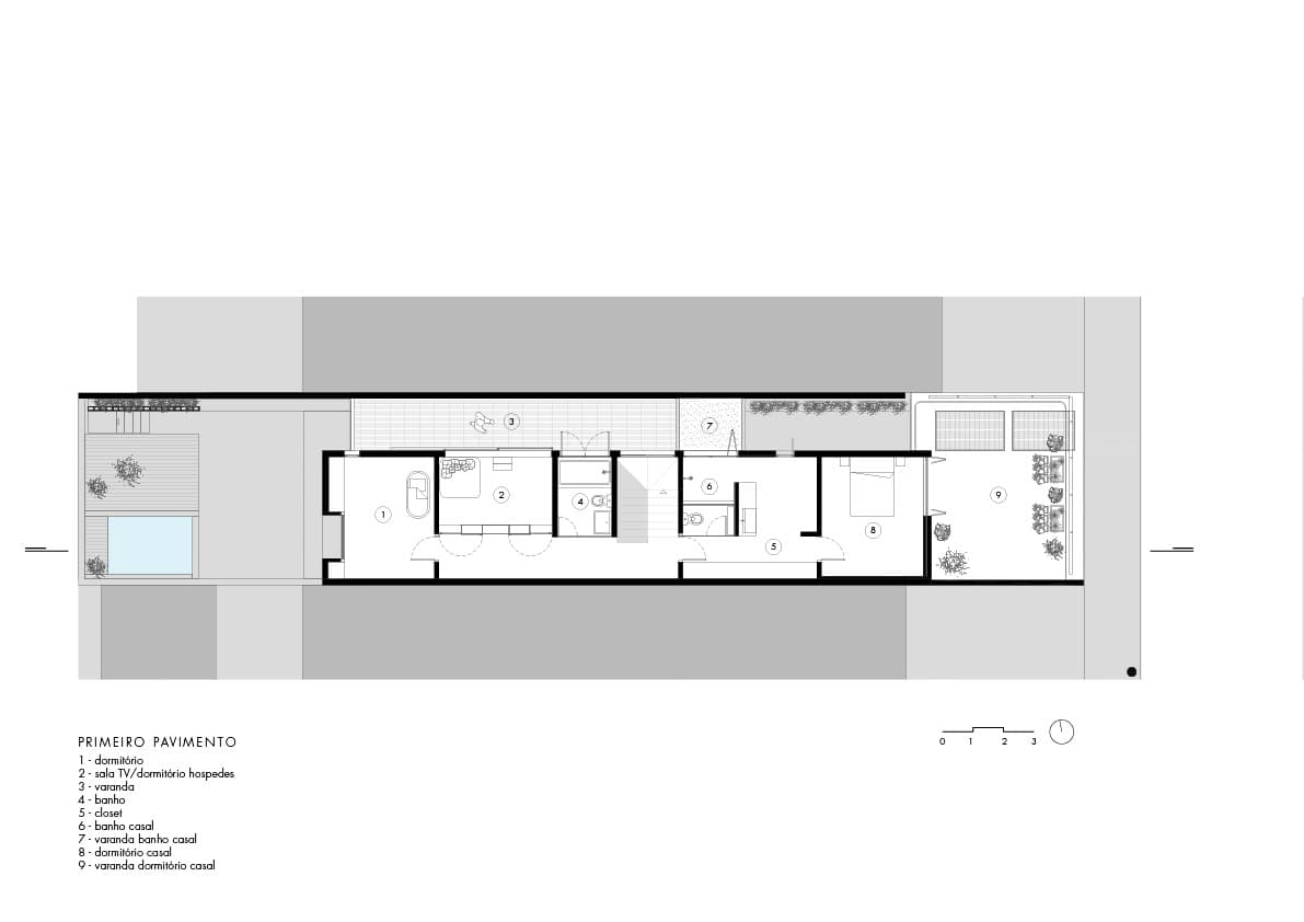
Casa Vila Ipojuca

2016, projeto de arquitetura e interiores por 23 Sul Arquitetura
Prêmio IAB 2019 - categoria "Interiores"
Colaboração em desenvolvimento de projeto executivo, detalhamento e interiores, acompanhamento de obra.
Projeto de reforma residencial na Vila Ipojuca, São Paulo.













Fotos: Pedro Kok
Equipe: André Sant’Anna, Gabriel Manzi, Ivo Magaldi, Lucas Girard, Luís Pompeo, Luiz Florence, Moreno Zaidan, Tiago Oakley, Anelise Bertolini, Leonardo Klis, João Miguel Silva, Carmem Aires, Chay Cardoso, Fernanda Schelp, Lucas Menezes, Raquel Takamoto, Laura Castellari, Sofia Toi, Júlia Brückmann