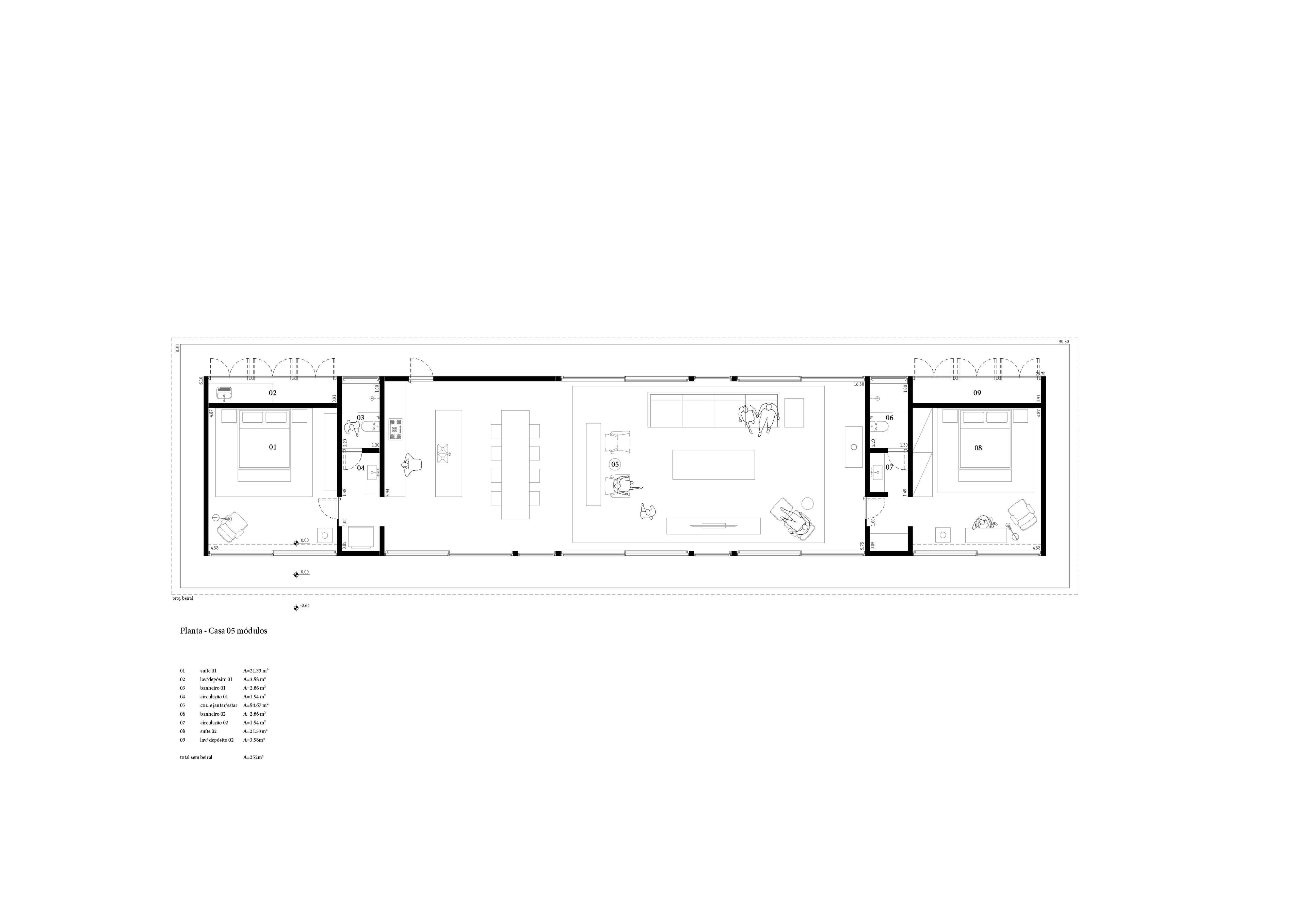
Casa Lâmina

2024, projeto de arquitetura e interiores por Gabriel Kogan
Colaboração como coordenadora em todas as etapas do projeto.
Projeto de casas modulares de alto padrão em Madeira Lamelada Colada (MLC) em parceria com a empresa Rewood (Soluções estruturais em madeira).











Equipe: Gabriel Kogan, Calil Neto, Chay Cardoso, Léo Kaufman, Gabriel Lupo e Giulia Giago