Casa FLO

Em construção, projeto de arquitetura e interiores por Studio Ag Arquitetura
Colaboração como coordenadora em todas as etapas do projeto e acompanhamento de obra.
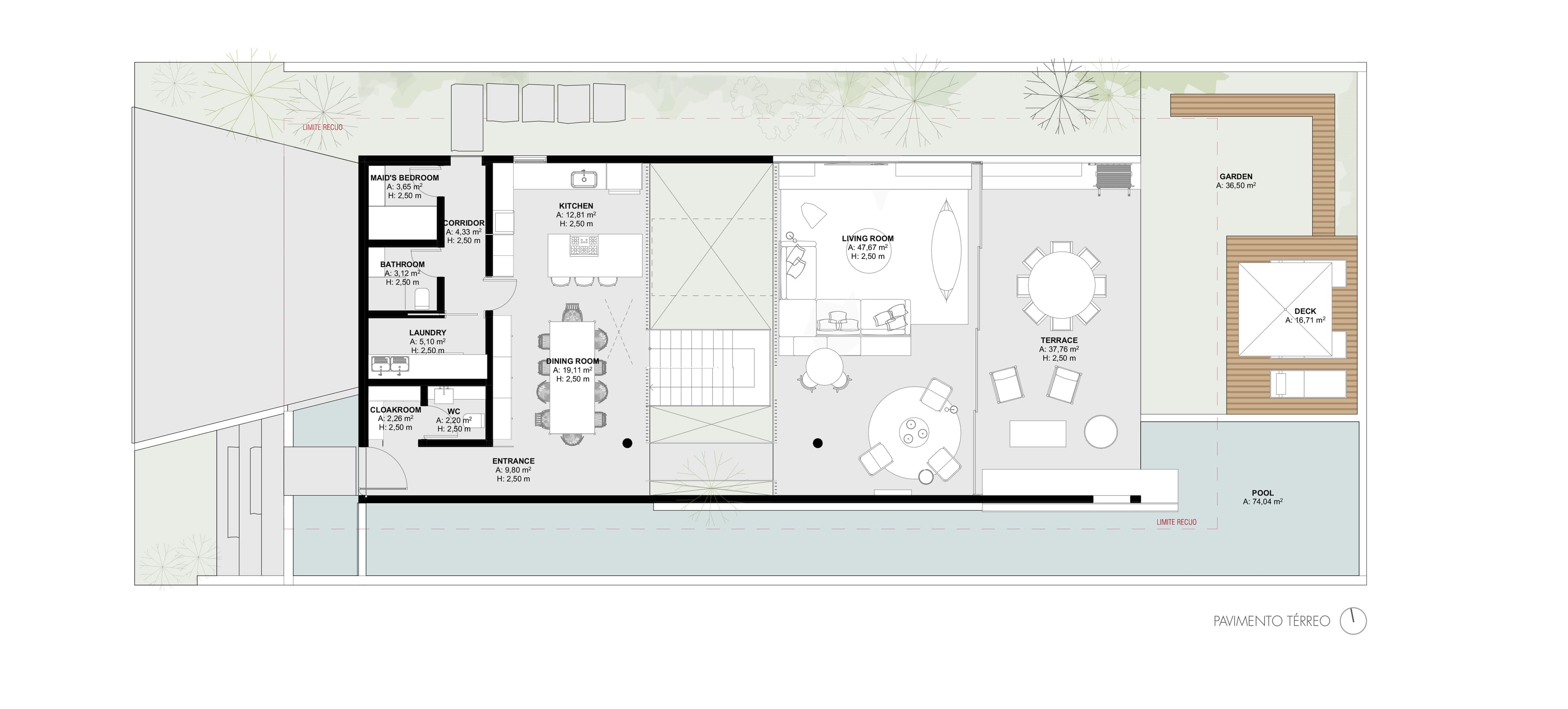
Projeto residencial em Morro das Pedras, Florianópolis, no estado de Santa Catarina.









Equipe: Amanda Castro, Giovana Giosa, Chay Cardoso, Izabela Figueiredo, Amanda Domingues, Camilla Gubeissi, Igor Patris, Isabela Viegas