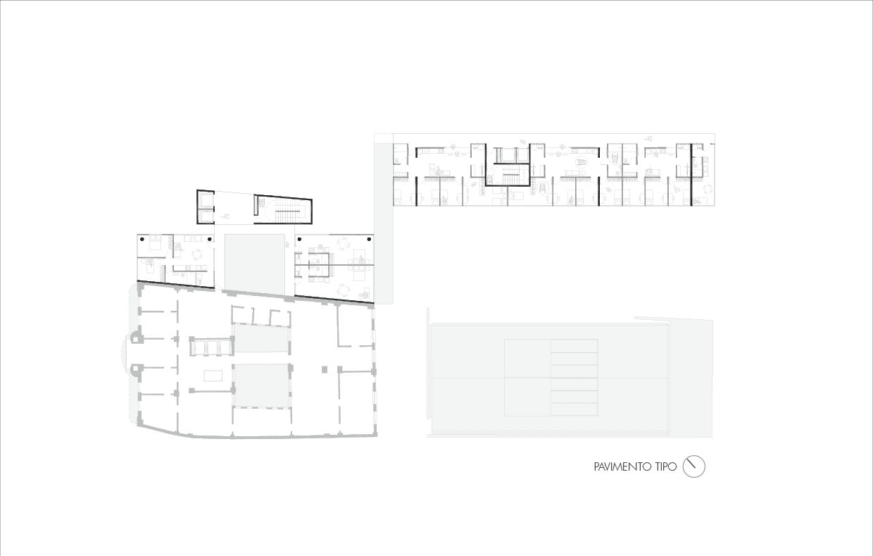
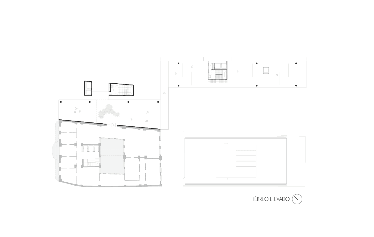
Casa do Estudante

2017, trabalho final de graduação por Chay Cardoso
Finalista no Prêmio Ópera Prima
Banca: Milton Braga (orientador) Angelo Bucci Vinicius Andrade
O trabalho final de graduação, “Casa do Estudante. Um projeto de habitação no centro histórico de São Paulo”, nasce da inquietação pessoal em estudar novas formas de ressignificar o centro de São Paulo e reconstruí-lo como espaço habitado. O recorte para o ensaio de um novo edifício está na colina entre os rios Tamanduateí e Anhangabaú, o Triângulo Histórico, por entendê-lo como identidade de todo o centro e por ver um grande potencial de ressignificação em seu espaço.
Para isso, a recente desapropriação do terreno vizinho ao Edifício Sampaio Moreira, na Rua Líbero Badaró, revela um novo vazio e nele ensaio um edifício de uso misto, a Casa do Estudante, anexo à nova Secretaria Municipal de Cultura. Diante de tantas tensões entre significados e percepções desse espaço, acredito que pensar o novo é criar um convite para uma futura e nova apropriação de todo o centro.











