Apto RR

2021, projeto de reforma e interiores por Chay Cardoso
Fui convidada para fazer o projeto de reforma de um estúdio de 22m2 na divisa da cidade de Santos com São Vicente por um querido amigo baiano, que hoje vive na capital paulista e sempre que pode desce a serra para surfar na baixada.
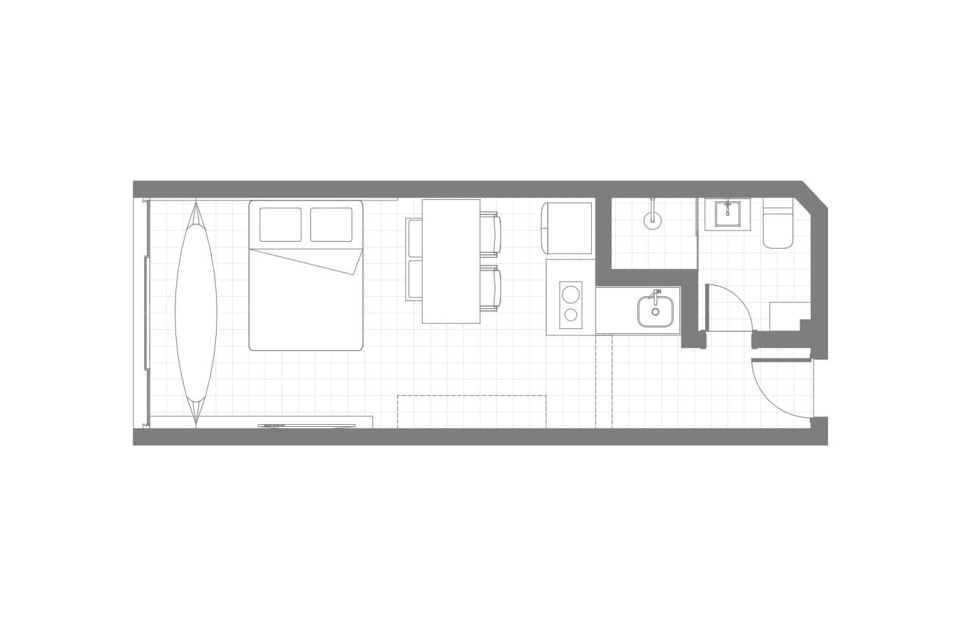
Ao entrar no estúdio vemos sua organização espacial franca e simples, além da maravilhosa vista para a praia de Itararé. Uma viga separa o estúdio em dois ambientes, acesso/cozinha/banho e sala/quarto e cria um recorte, enquadrando ao fundo a vista do mar. Ao lado da grande janela que se abre para o mar, um espelho foi estrategicamente colocado para ampliar o espaço e refletir a vista de toda a cidade de São Vicente.
O teto do maior ambiente foi descascado dando espaço a linda laje aparente, que trouxe mais uma materialidade para o estúdio. O piso original, que se encontrava em péssimo estado, foi trocado por uma lajota cerâmica similar para manter a memória do projeto, mas agora em tom areia, compondo o recorte de mar azul que se vê da janela. As paredes se mantêm brancas para realçar não só a nova laje aparente, como o importante jogo de luz e sombra.
As marcenarias desenhadas em compensado cru mantêm a clara paleta do estúdio que ilumina o ambiente. Sem necessidade de muitos compartimentos de armazenamento, um possível armário se divide em guarda-roupa elevado e baú/banco para trazer mais flexibilidade ao espaço.














